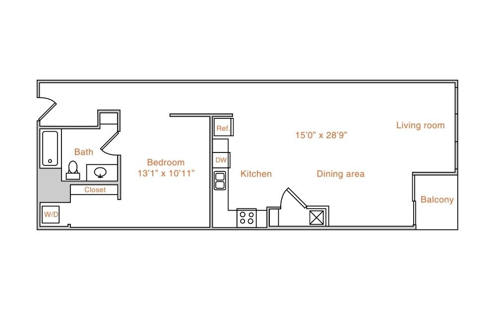
A3

1 bed1 bath972 sq. ft.
Starting at $1,695
A3 - 1 bedroom floorplan layout with 1 bathroom and 972 square feet

Floorplans are artist’s rendering. All dimensions are approximate. Actual product and specifications may vary in dimension or detail. Not all features are available in every rental home. Prices and availability are subject to change. Please see a representative for details.